Home
Studio
Contatti
Formazione
Edilizia
Consulenze
Perizie e CTU
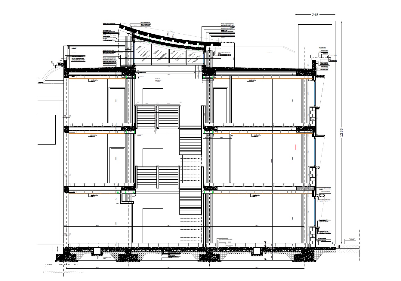
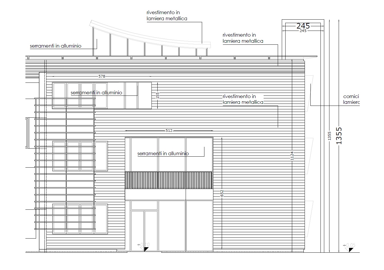
Ivet
Progettazione esecutiva
"IVET s.r.l.", Brendola, Vicenza, 2008
Progetto esecutivo e direzione lavori di edificio produttivo, Brendola, Vicenza.