Home
Studio
Contatti
Formazione
Edilizia
Consulenze
Perizie e CTU
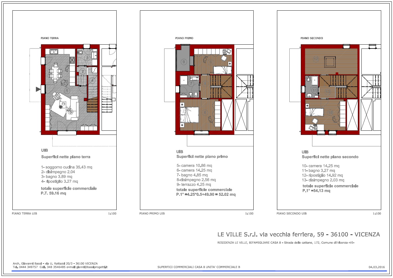
Casa8
Progettazione esecutiva
"CASA 8", Vicenza, 2016
Progetto esecutivo e direzione lavori di abitazione unifamiliare, Vicenza.