Area S_A

Progettazione

"AREA S_A", Altavilla Vicentina, Vicenza, 2015

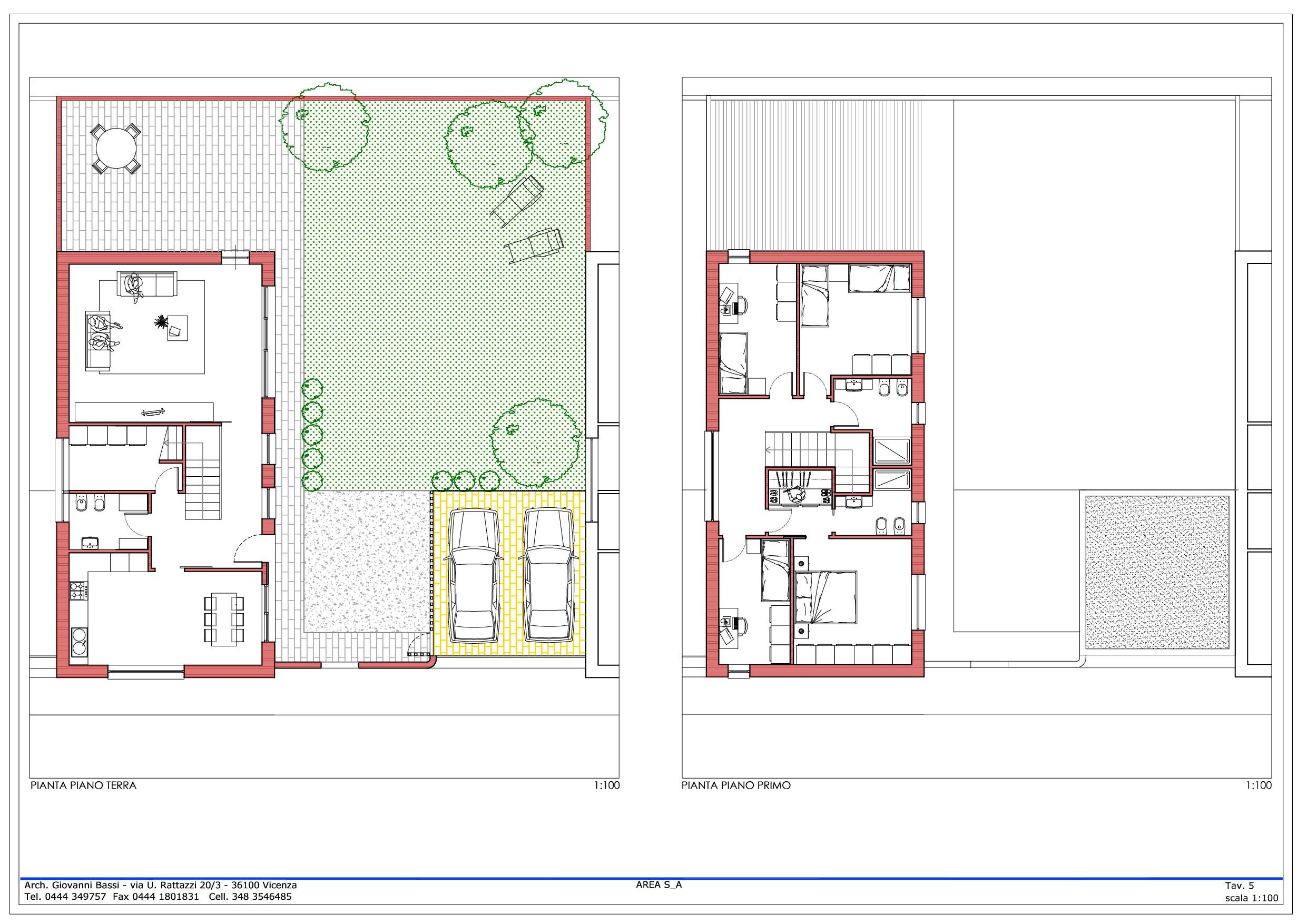
L'area SIF interessa una superficie di più di un ettaro con destinazione residenziale nel territorio comunale di Altavilla Vicentina, volta a riqualificare la preesistente area produttiva da tempo dismessa, valorizzando il lotto con una varietà di spazi destinati alla residenza. Il progetto prevede un residence con case a schiera, a corte ed una palazzina ad appartamenti, tutte unità che interagiscono con gli spazi a verde, privati e pubblici. Il progetto si articola su di un percorso centrale lungo il quale si distribuiscono l’area verde, gli accessi ed i servizi. L’obiettivo è di dare una forte identità allo spazio collettivo e con questo una separazione rispetto all’area pubblica esterna. I servizi pubblici supplementari a parcheggio e a verde sono per questo distinti e collocati prima dell’ingresso al residence, qualificandone anche la zona di ingresso. Il parcheggio pubblico e soprattutto l’ampia area a giardino pubblico conferiscono continuità figurativa all’intervento così da migliorare la qualità ambientale del contesto, favorito anche dalla pista ciclopedonale che si collega direttamente al complesso.