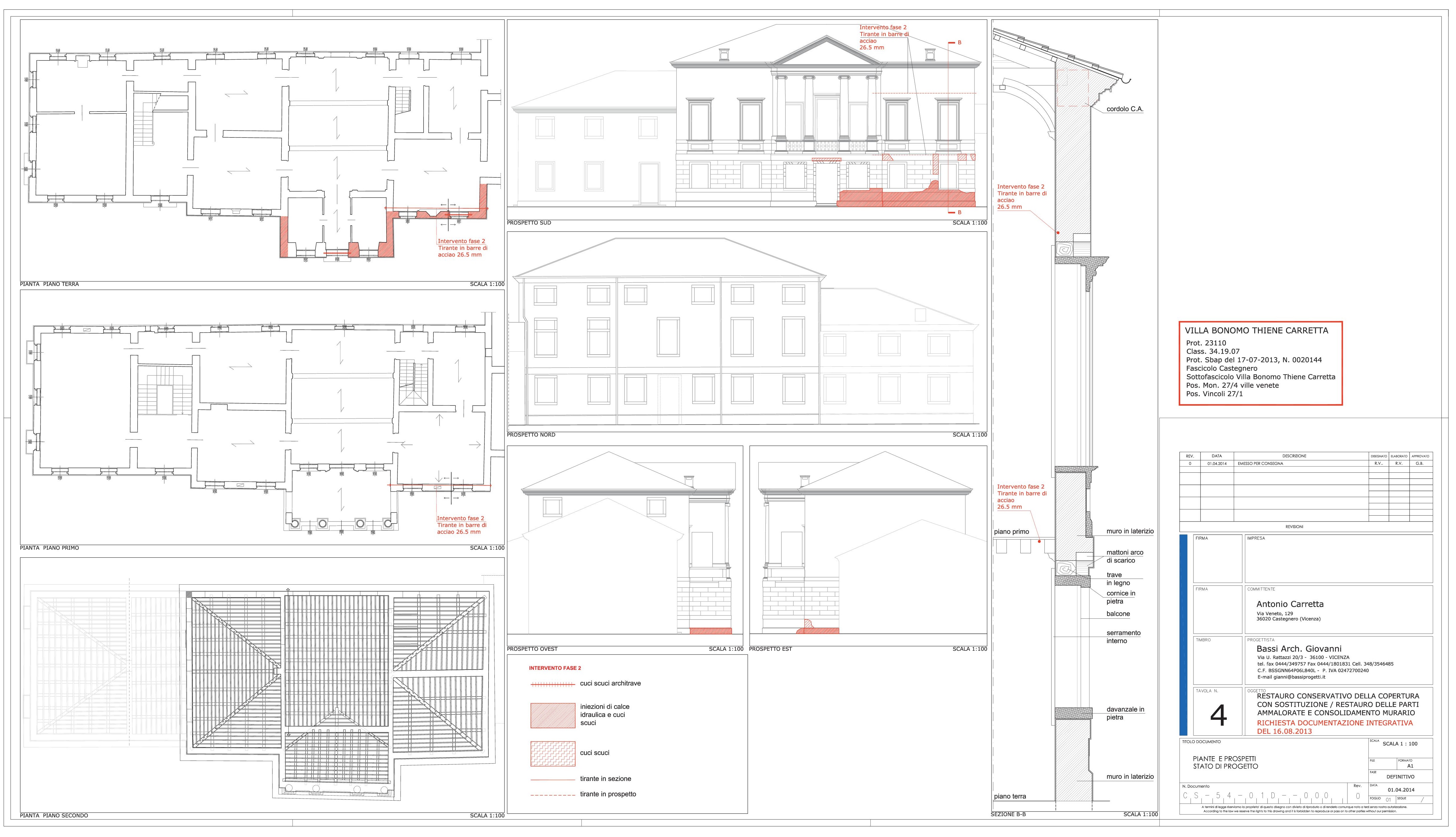
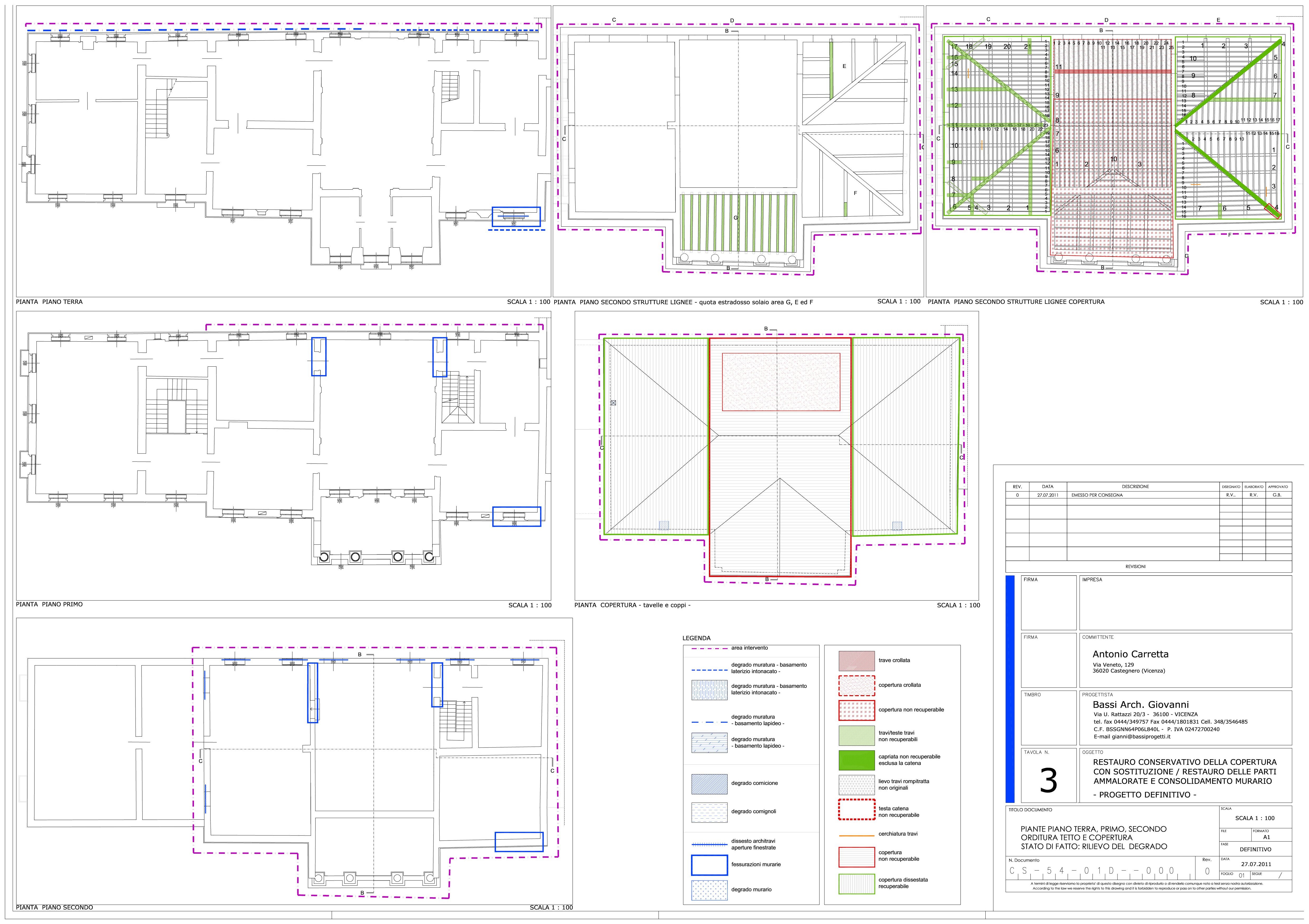
Villa Bonomo Thiene Carretta

Restauro e Ricerche storiche

"VILLA BONOMO THIENE CARRETTA", Castegnero, Vicenza, 2011

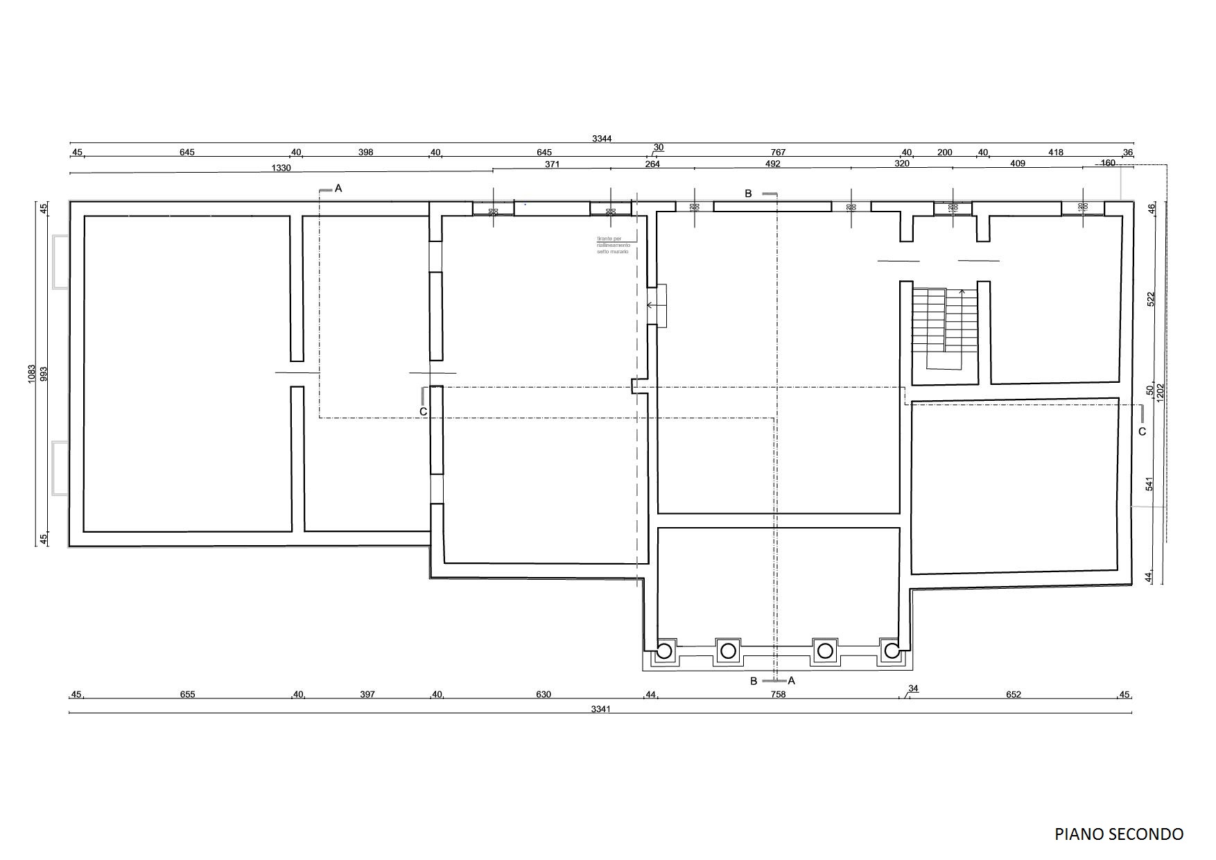
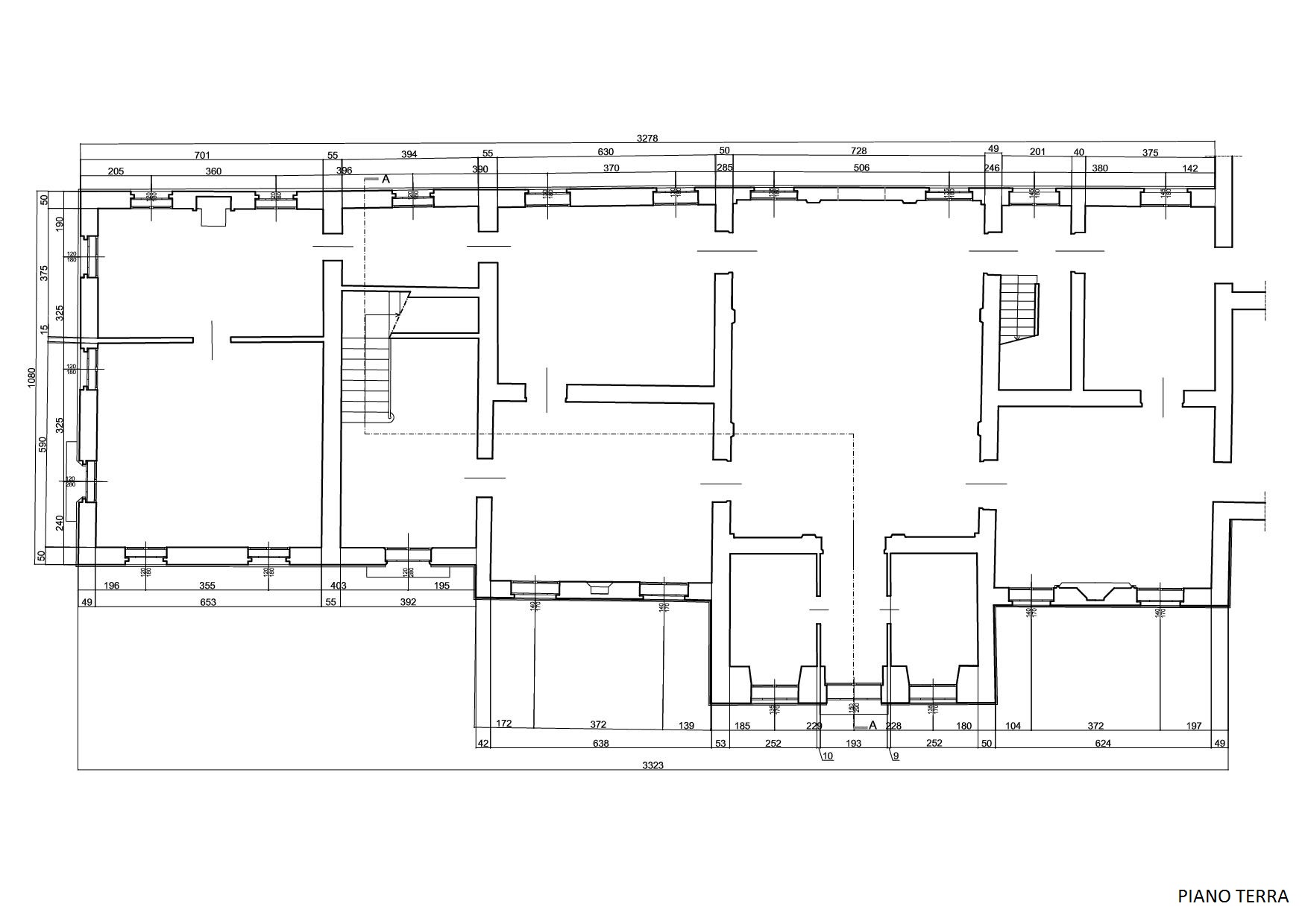
Villa Bonomo Thiene Carretta è situata a Castegnero, in provincia di Vicenza, ed è un edificio vincolato dalla Soprintendenza archeologica, belle arti e paesaggio per le province di Verona, Rovigo e Vicenza, per la quale si è reso necessario prima un restauro conservativo della copertura con sostituzione e restauro delle parti ammalorate e consolidamento murario, e poi un intervento di consolidamento delle opere murarie e restauro e/o rifacimento dell'intonaco esterno.