Home
Studio
Contatti
Formazione
Edilizia
Consulenze
Perizie e CTU
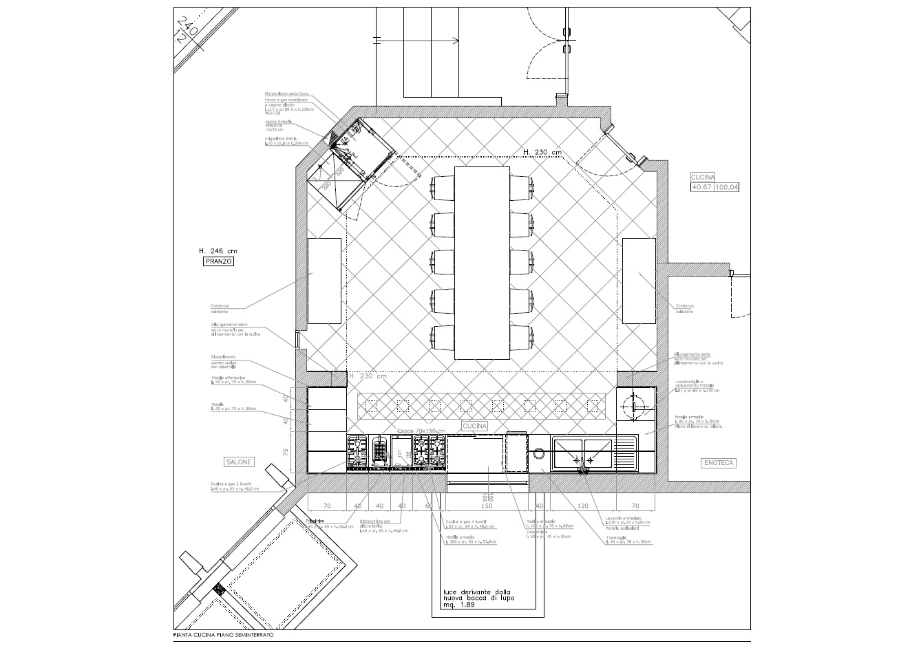
Villa Venere
Arredo&Design
"ARREDO VILLA VENERE", Camposampiero, Padova, 2005
Progettazione e realizzazione di arredamento di interni per Villa Venere, Camposampiero (PD).