PAC 1

Progettazione

"PAC 1", Campedello, Vicenza, 2011

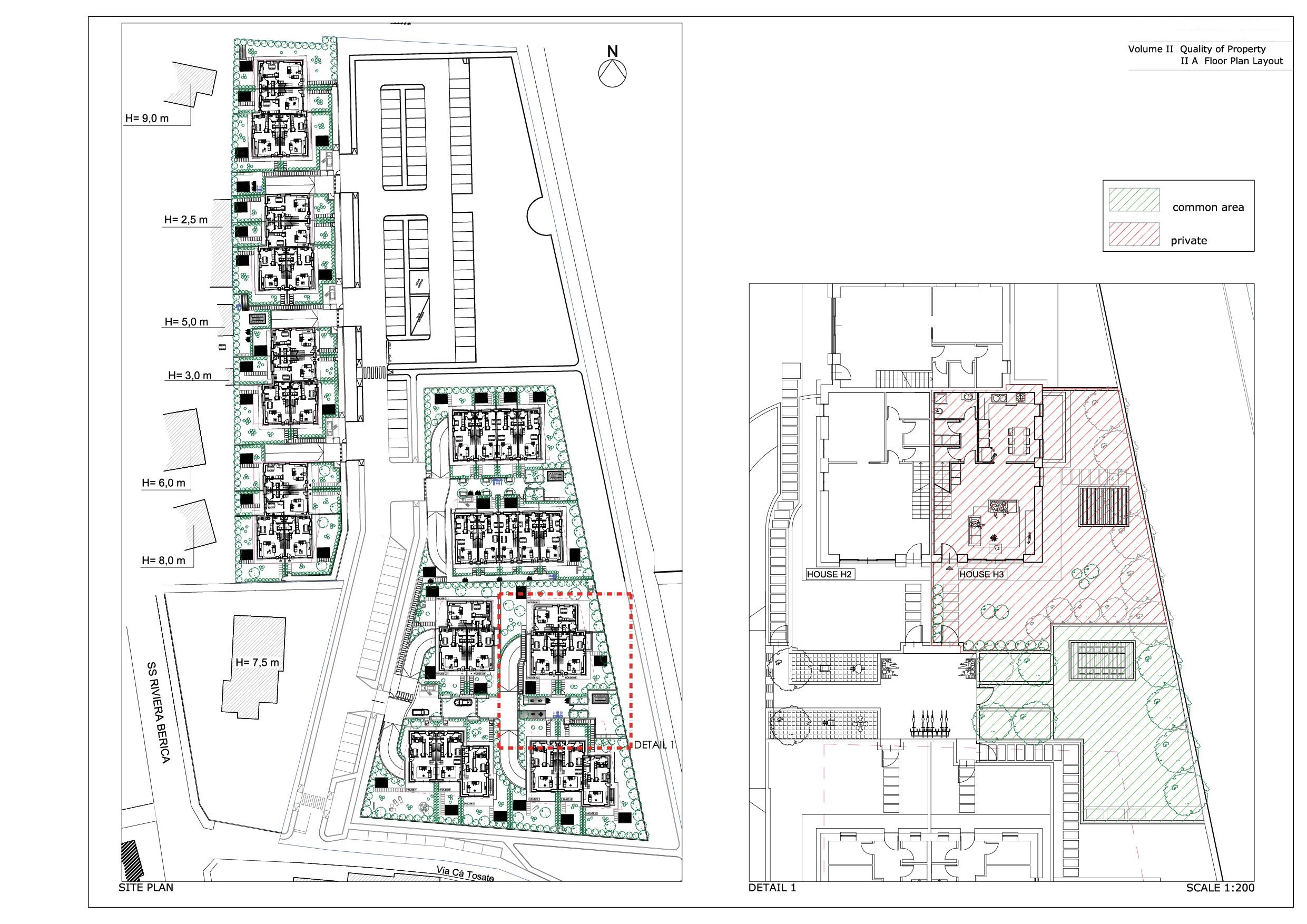
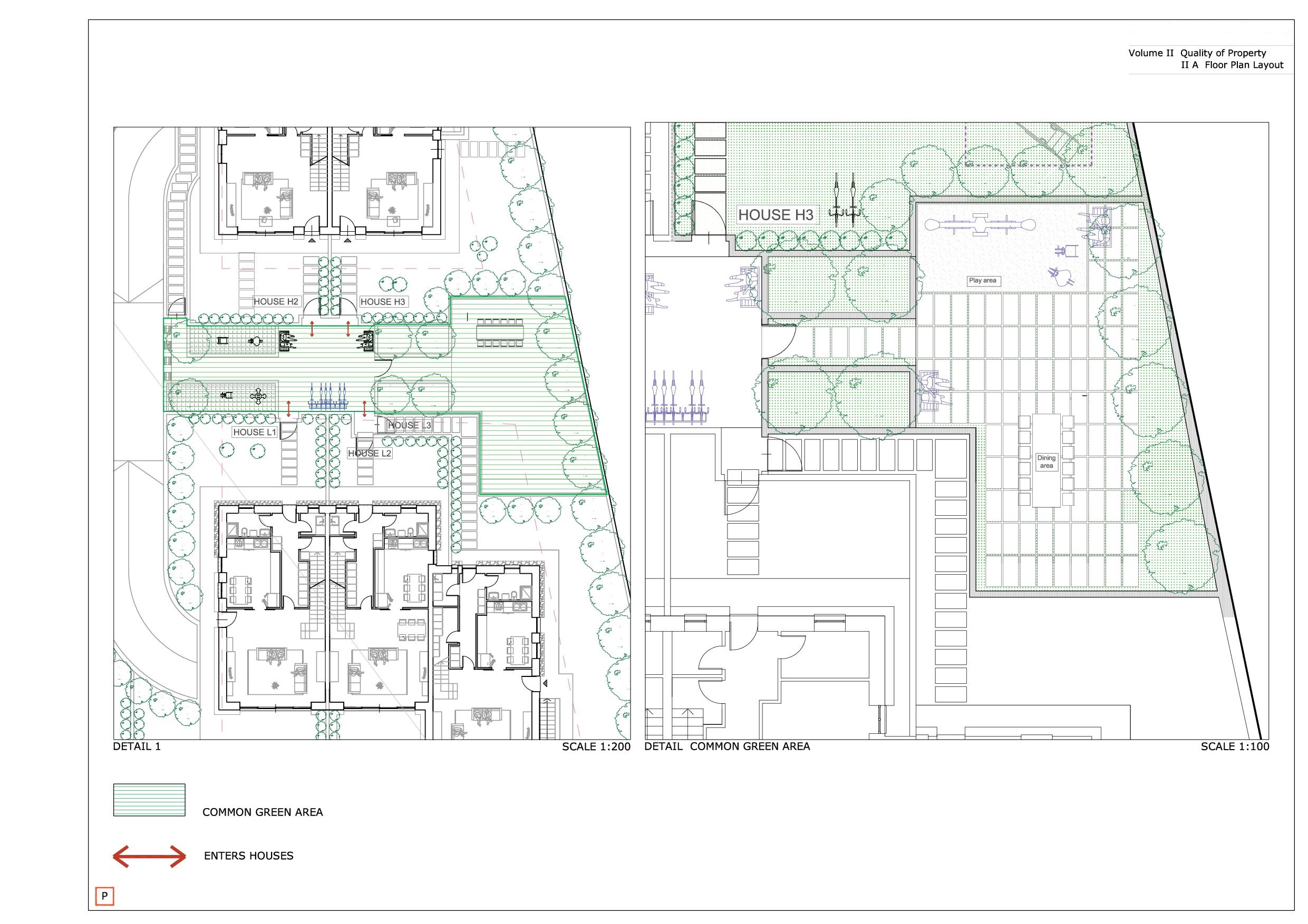
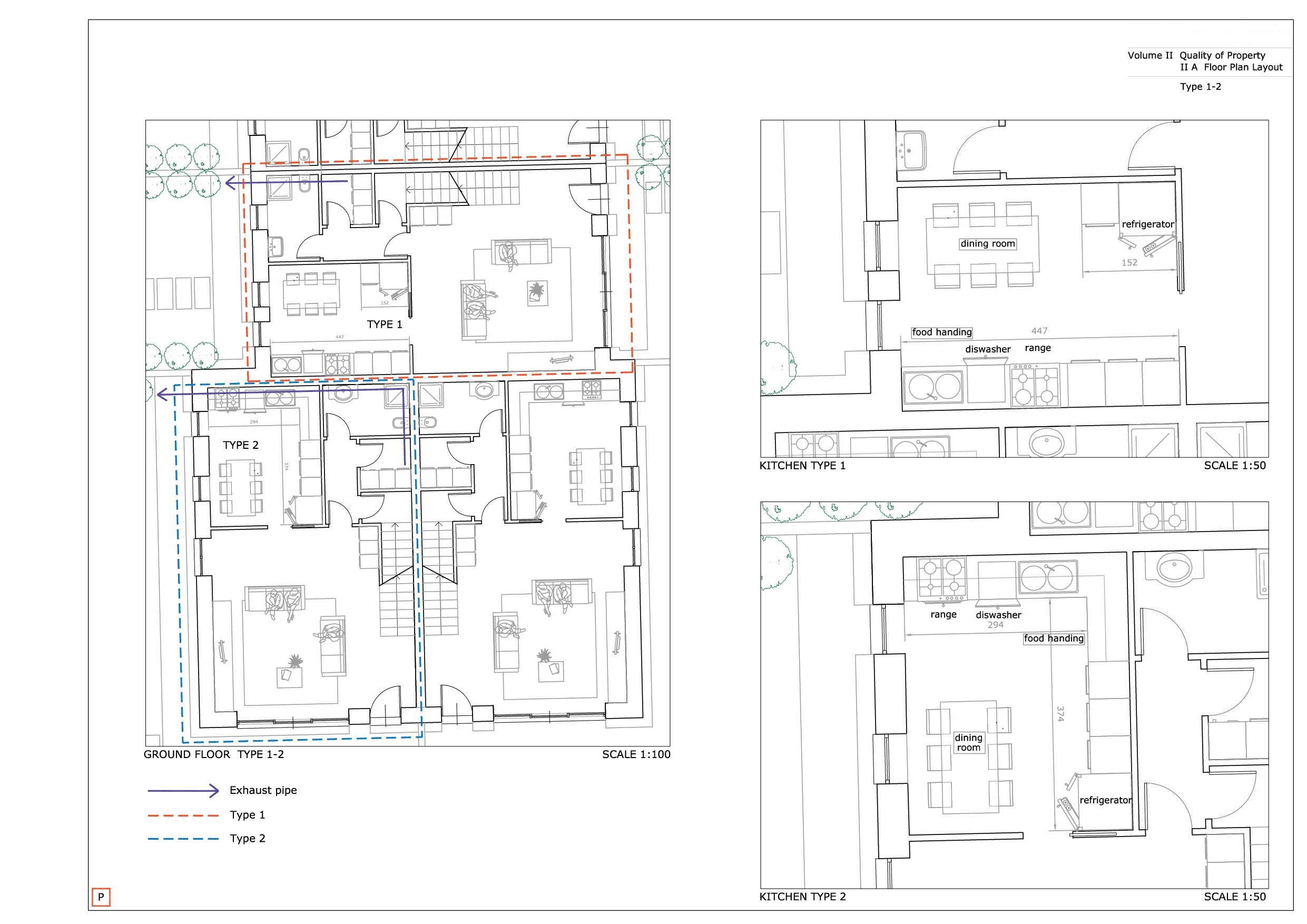
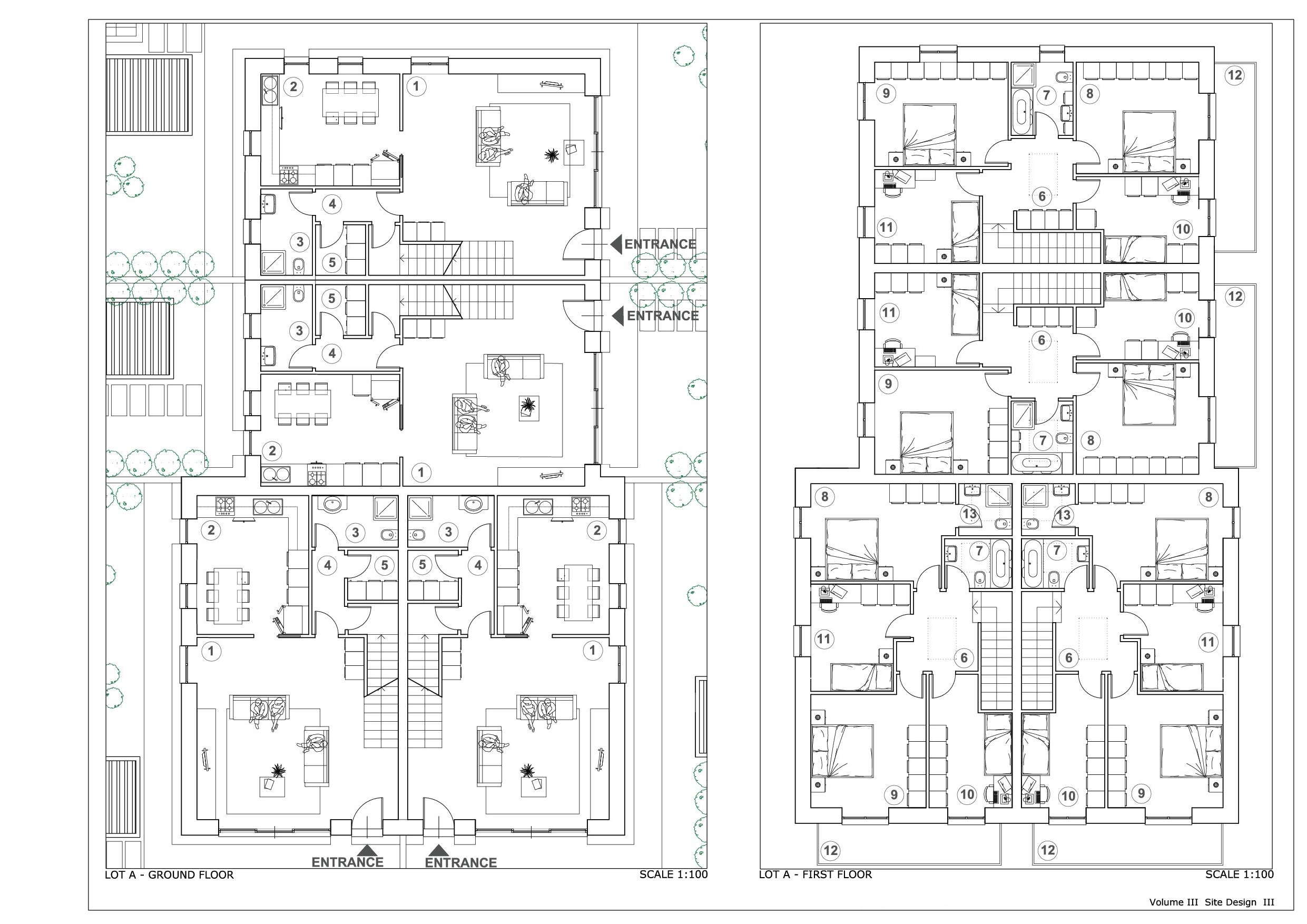
Progetto preliminare di concorso per area PAC 1 a Campedello, Vicenza. Complesso residenziale diviso in comparti che si distingue per le aree verdi interne ai vari nuclei residenziali, strutturati con zone comuni per il relax e con servizi collettivi per cucinare e mangiare insieme e per vivere attivamente gli spazi comuni.