Il Tetto

Progettazione

"IL TETTO", 2012

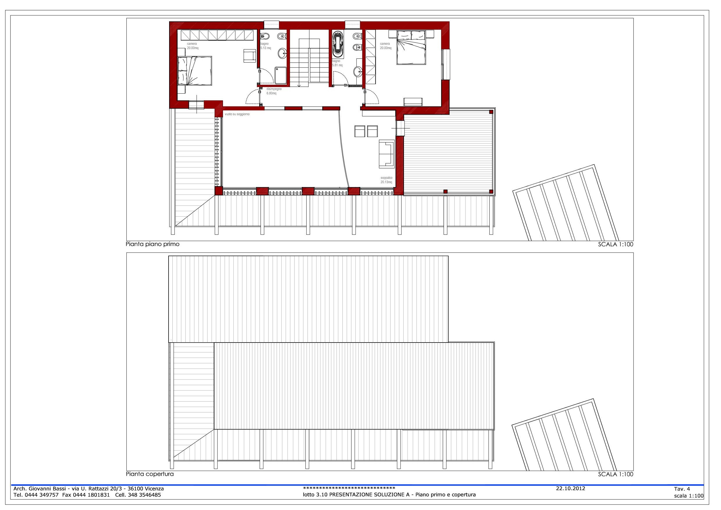
Il sito è localizzato sulla collina di Monteviale, all'interno di un piano di lottizzazione. Il progetto di abitazione unifamiliare si propone in dialettica con la vista panoramica e con lo spazio a giardino, attraverso il portico e le ampie aperture. Gli spazi interni, riservano ai luoghi di relazione l'affaccio panoramico, mantenendo più privata e protetta la zona notte come nelle abitazioni rurali tradizionali.