Home
Studio
Contatti
Formazione
Edilizia
Consulenze
Perizie e CTU
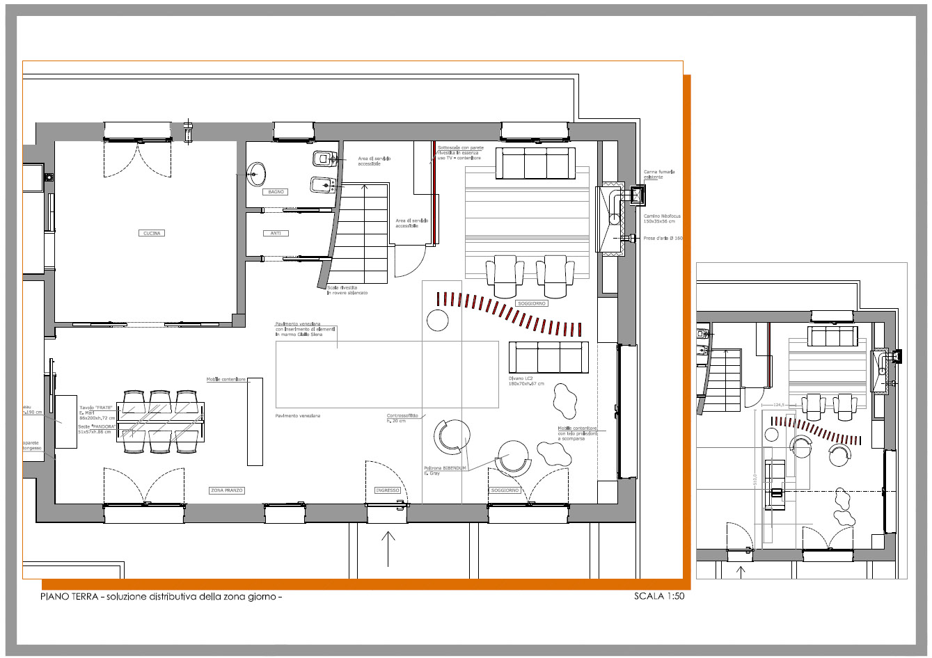
Casa PG
Arredo&Design
"CASA PG", Vicenza, 2008
Progettazione e realizzazione di arredamento di interni per abitazione unifamiliare, Vicenza (VI).